- Updated On:
- 09.03.2026
- 4 Magamistube
- 3 Vannitube
- 360.40 m2
Kirjeldus
Vaid umbes 40-minutilise autosõidu kaugusel Tallinna südamest, Salmistu imelise liivaranna ja moodsate sadamarajatiste vahetus läheduses, on pakkuda eriline kinnistu, mis ühendab endas privaatsuse ja looduslähedase elukeskkonna.
7306 m² suurusel hooldatud krundil paikneb terviklik kompleks kahe elamuga. Lisaks kuuluvad siia maakividest kelder ning suvine väliköök/grillimaja. Kinnistu planeering sobib suurepäraselt kahele perele või mitme põlvkonna kooseluks.
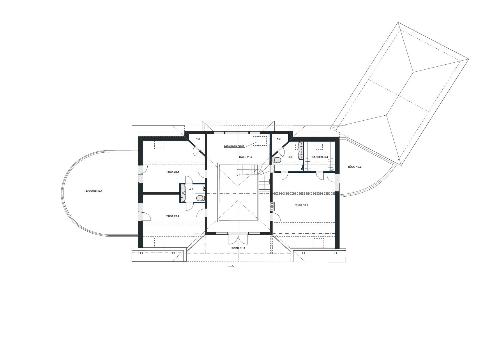
Peahoone on väärikas kahekorruseline kivimaja, mille üldpind on umbes 360 m². Selle südameks on avar ja valgusküllane elutuba, mis avaneb läbi kahe korruse. Suured, peaaegu põrandast laeni aknad toovad ruumi rohkelt valgust ning loovad hea kontakti maja ümbritseva loodusega. Köök ja söögituba on kujundatud nii, et seal on piisavalt ruumi nii pere igapäevasteks toimetusteks kui ka suuremateks seltskonnaõhtuteks. Lisaks leiab esimeselt korruselt kabineti, treeningsaali, saunaosa aurusauna ja mullivanniga ning majapidamisruumid. Saunast pääseb otse õue, kus ootab Bassein (vajab korrastamist).
Elamu juurde kuulub soe garaaž ja eraldi varjualune veel mitmele sõidukile.
Ülemisel korrusel asub kolm mugavat magamistuba, millest ühel on oma privaatne duširuum ja wc; teisel kahel on omavahel jagatud duširuum ja wc. Tubadest pääseb avaratele rõdudele, mis avanevad mõlemale poole maja ja pakuvad kauneid vaateid ümbritsevale loodusele.
Küttesüsteemiks on vesipõrandaküte, mida toidab kaasaegne Nibe maasoojuspump – see tagab energiasäästliku ja mugava sisekliima igal aastaajal. Vesi tuleb puurkaevust, kanalisatsioon on lokaalne.
Hoonel on olemas kasutusluba!
Kõrvalhoone, kahekordne ca 114 m2 palkmaja, on ehitusjärgus ja hetkel karbi kujul: aknad ja uksed ees, kivikatus peal). Vesi ja kanal on sisse viidud aga lõplikku viimistlust ei ole tehtud.
Kinnistu juurde on rajatud tenniseväljak, mida saab naabriga ühiselt kasutada.
Salmistu on hinnatud paik oma looduskauni rannajoone ja esmaklassilise jahisadama tõttu. Sadam asub kinnistust kõigest poole kilomeetri kaugusel ning lähedal olev rand on üks Põhja-Eesti kauneimaid – ideaalne koht suplemiseks, sportimiseks või mererahu nautimiseks. Igapäevaseks eluks vajalikud teenused on kättesaadavad Kuusalus: koolid, lasteaiad, poed ja spordikeskus. Pealinna viib kiire ühendus mööda Peterburi maanteed, mis teeb Tallinna keskuse hästi ligipääsetavaks nii auto kui ka ühistranspordiga.
See kinnistu on suurepärane valik inimesele, kes hindab ruumi, privaatsust ja kvaliteeti – kodu, kus saab nautida mere lähedust, looduskaunist ümbrust ning samas olla mugavalt seotud pealinna võimalustega.
Olete oodatud majaga tutvuma!
JAGA MINU KONTAKTI KÕIGILE, KES VAJAVAD KINNISVARANÕU!
– – – – – – – – – –
Telli hindamine UUS MAA Kinnisvarabüroolt https://uusmaa.ee/teenused/hindamine/
ning saad:
– Eksperthinnangu kuni 20% soodsamalt kui võtad koduga seotud laenu Swedbankist
– Pankadest parimad kodulaenutingimused
– Kiire, kvaliteetse ning usaldusväärse hindamisteenuse Eestis
UUS MAA KINNISVARABÜROO EKSPERTHINNANGUID AKTSEPTEERIVAD KÕIK FINANTSASUTUSED.
– – – – – – – – – –
Liitu Uus Maa uudiskirjaga ja saa homset kinnisvarainfot juba täna!
https://www.uusmaa.ee/uudiskirjagaliitumine/
– – – – – – – – – –
Kodu aitab osta Swedbank.
Pakkumise saamiseks kasuta koodi UUSMAA ja Sind teenindatakse eelisjärjekorras.
Võtame ühendust 1 tööpäeva jooksul.
Uus Maa kliendile soodsam lepingutasu. Küsi täpsemat infot maaklerilt.
Finantsteenuseid pakub Swedbank AS. Tutvu tingimustega, pea nõu.


