- Updated On:
- 19.12.2025
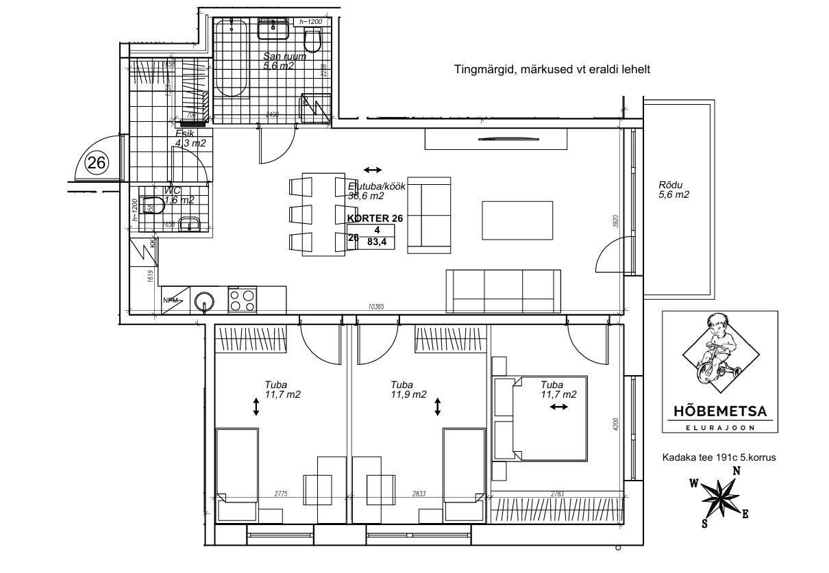
- 3 Bedrooms
- 1 Bathrooms
- 83.40 m2
Description
Rohelises ja hinnatud Hõbemetsa elurajoonis on müügile tulnud avar, neljatoaline perekorter.
Kogu Hõbemetsa arendus on hästi planeeritud, tervikliku üldilme, reljeefse maastiku ja kaunite mändidega loodussõbralik elukeskkond.
Majad on hubase arhitektuuriga ja looduslähedastes rahulikes värvides, sobitudes suurepäraselt looduskeskkonda. Majade vahel on rohkelt ruumi ja privaatsust, kuhu on loodud lastele mõnusad mänguväljakud. Kogu piirkonda iseloomustavad sihvakad männid, palju rohelust, eritasapinnalised jalgteed ning omanäoline elukeskkond.
Korter asub viiekordse maja viimasel korrusel. Elutuba koos köögiga ning peamagamistuba asetsevad hommikupäikese poole ning kaks väiksemat magamistuba on lõunapoolsed. Elutoast pääseb ka rõdule, kuhu on mugavalt võimalik mahutada laud ning kaks tooli. Väiksematest tubadest on suurepärane roheline vaade kergliiklustee poole.
Korter on väga hästi hoitud ning uuel omanikul on kohe võimalus sisse kolida. Köögis on olemas kogu vajaminev tehnika.
Majas on vesipõranda küte, linna keskkütte baasil. Kõik toad on eraldi reguleeritavad. Märgruumides on elektriline põrandaküte. Korteris on majapõhine soojustagastusega sundventilatsioon, mis tagab õhuvahetuse.
Suured aknad ning avarad vaated toovad kogu korterisse palju valgust.
Korteris on eraldi külaliste wc ning vanniga vannituba.
Korteri kõrvalkulud on olnud suvekuudel umbes 150 eurot ning kütteperioodil umbes 210 eurot, millele lisandub isiklik vee- ja elektritarbimine.
Korteri juurde kuulub maja esimesel korrusel isiklik lukustatud panipaik, hind 4000 eurot, lisaks on majas eraldi ruum jalgrataste hoiustamiseks.
Korterile kuulub kortermaja katuse all kaks, kõrvuti, parkimiskohta, koha hind 5000 eurot.
Panipaiga ja parkmiskohtade hinnad lisanduvad müügihinnale!
Hind koos kahe parkimiskoha ning panipaigaga on 324 900 eurot.
Hõbemetsa on ühest suunast ümbritsetud Harku-Nõmme kergliiklusteega ning see tagab suurepärased võimalused liikumiseks. Parimad tingimused on tagatud nii jalutajale, jooksjale, rulluisutajale kui ratturile. Lisaks on jalutuskäigu kaugusel Nõmme Spordikeskus, mis tagab talvisel ajal parimate suusaradade läheduse. Nõmme Spordikeskuses on lisaks suusa- ja maastikuradadele veel sise- ja välijõusaalid, väliujula, palliplatsid, seikluspark, uisuplats jne.
Väga lähedal on ka Taltech ja suur TTÜ Spordihoone rohkete sportimisvõimalustega.
Jalutuskäigu kaugusse jäävad ka erinevad kauplused, Mustamäe Elamus SPA ja hinnatud Nõmme Turg.
Hõbemetsas on väga hea ühistranspordiühendus kesklinnaga, buss nr 24 peatus asub vaid mõne minutilise jalutuskäigu kaugusel.
Olete lahkesti oodatud tutvuma!
JAGA MINU KONTAKTI KÕIGILE, KES VAJAVAD KINNISVARANÕU!
– – – – – – – – – –
Telli hindamine UUS MAA Kinnisvarabüroolt https://uusmaa.ee/teenused/hindamine/
ning saad:
– Eksperthinnangu kuni 20% soodsamalt kui võtad koduga seotud laenu Swedbankist
– Pankadest parimad kodulaenutingimused
– Kiire, kvaliteetse ning usaldusväärse hindamisteenuse Eestis
UUS MAA KINNISVARABÜROO EKSPERTHINNANGUID AKTSEPTEERIVAD KÕIK FINANTSASUTUSED.
– – – – – – – – – –
Liitu Uus Maa uudiskirjaga ja saa homset kinnisvarainfot juba täna!
https://www.uusmaa.ee/uudiskirjagaliitumine/
– – – – – – – – – –
Kodu aitab osta Swedbank.
Pakkumise saamiseks kasuta koodi UUSMAA ja Sind teenindatakse eelisjärjekorras.
Võtame ühendust 1 tööpäeva jooksul.
Uus Maa kliendile soodsam lepingutasu. Küsi täpsemat infot maaklerilt.
Finantsteenuseid pakub Swedbank AS. Tutvu tingimustega, pea nõu.


